Minimalistische aanbouw met glazen dak aan monumentaal pand in Nederhorst den Berg
RPD werd gevraagd om de mogelijkheden te onderzoeken voor een aanbouw aan een monumentaal pand uit de 17e eeuw in Nederhorst den Berg. Vanaf het begin was de opdracht duidelijk: de bestaande binnenplaats, gesitueerd tussen de woning en de schuur, moest worden overkapt. Hiermee werd beoogd de binnenplaats functioneel onderdeel te maken van het woonhuis, zonder het authentieke karakter van het monumentale pand aan te tasten. Daarnaast wordt de bestaande schuur ingericht als werkkamer.

Uitdagingen en ontwerpaanpak
De grootste uitdaging lag in het zorgvuldig aansluiten van de nieuwe aanbouw op de monumentale bestaande situatie. Om een helder contrast te creëren tussen oud en nieuw is gekozen voor een minimalistische glazen overkapping met slanke, ranke profielen. Het glazen dak is constructief geïntegreerd tussen de woning en de schuur. Aan de korte zijde sluit een nieuwe muur met openslaande deuren naar de tuin de aanbouw volledig af.
Duurzaamheid en comfort
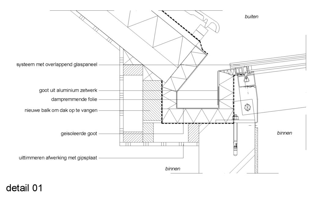
De serre beschikt over een licht hellend glazen dak met HR++ isolatieglas, wat zorgt voor een aangenaam binnenklimaat en een efficiënte afwatering via een subtiel weggewerkte goot in het dak van de schuur. Daarnaast zijn de wanden volledig geïsoleerd en is de vloer voorzien van isolatie, waarna de karakteristieke klinkers van de binnenplaats zorgvuldig zijn teruggelegd.

Resultaat
Deze moderne, transparante aanbouw respecteert en versterkt het monumentale karakter van het pand, terwijl de binnenplaats naadloos wordt geïntegreerd in het woonhuis. Zo ontstaat een lichte en uitnodigende leefruimte waarin oud en nieuw in perfecte balans samenkomen.



